Startseite » Immobilien » Attraktives Reihenmittelhaus mit 3 Zimmern und gemütlichem Außenbereich in Bremen-Gröpelingen
Attraktives Reihenmittelhaus mit 3 Zimmern und gemütlichem Außenbereich in Bremen-Gröpelingen
28239 Bremen, Reihenmittelhaus zum Kauf
Kontaktdaten
-
NameHerr Artur Vidmer
-
AnschriftContrescarpe 32
28203 Bremen -
E-Mail
-
Telefon
-
Telefon
-
Mobil
- zum Kontaktformular
Objektdaten
-
Objekt-ID2026-622
-
ObjekttypenHaus, Reihenmittelhaus
-
Adresse28239 Bremen
-
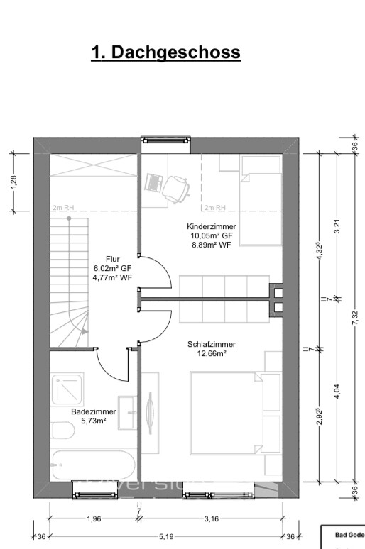
Wohnfläche ca.67,90 m²
-
Nutzfläche ca.34,39 m²
-
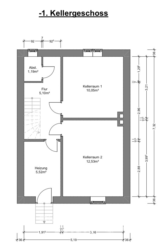
Grundstück ca.78 m²
-
Zimmer3
-
Schlafzimmer2
-
Badezimmer1
-
Separate WC1
-
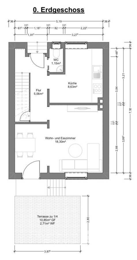
Terrassen1
-
HeizungsartZentralheizung
-
Wesentlicher EnergieträgerGas
-
Baujahr1928
-
Käuferprovision3,57 % inkl. 19 % MwSt.
-
Kaufpreis149.900 EUR
Ausstattung / Merkmale
- ✓ Gäste-WC
- ✓ Keller
- ✓ Separates WC
- ✓ Terrasse
Energieausweis
-
EnergieausweistypBedarfsausweis
-
Gültig bis15.12.2035
-
GebäudeartWohngebäude
-
Baujahr lt. Energieausweis1928
-
PrimärenergieträgerGas
-
Endenergiebedarf249,60 kWh/(m²·a)
-
EnergieeffizienzklasseH
Objektbeschreibung
Beschreibung
Willkommen in Ihrem neuen Zuhause!
Dieses gemütliche Reihenmittelhaus aus dem Jahr 1928 bietet auf rund 68 m² Wohnfläche und einem Grundstück von etwa 78 m² den perfekten Rückzugsort. Mit drei Zimmern und einer durchdachten Raumaufteilung schafft die Immobilie eine angenehme Wohnatmosphäre.
In den letzten Jahren wurden wichtige Modernisierungen vorgenommen: Die Küche sowie die Heizung sind erst im Januar 2024 erneuert worden.
Der kleine Außenbereich mit Terrasse lädt zum Entspannen ein und bietet Platz für gemütliche Stunden im Freien. Ein praktisches Gartenhaus sorgt für zusätzlichen Stauraum.
Die Immobilie wird leerstehend übergeben, was Ihnen eine flexible Planung für den Einzug ermöglicht. Dank der kompakten Größe und des pflegeleichten Grundstücks ist dieses Haus eine attraktive Alternative zur Mietwohnung und bietet gleichzeitig die Vorteile eines eigenen kleinen Gartens.
Gestalten Sie dieses charmante Haus ganz nach Ihren Vorstellungen und genießen Sie die Vorzüge einer eigenen Immobilie in Gröpelingen.
Wr freuen uns auf Ihre Anfrage.
Ausstattung
- Reihenmittelhaus
- Wohnfläche ca. 67,90 m²
- 3 Zimmer
- Grundstücksfläche ca. 78 m²
- Baujahr 1928
- Terrasse mit Gartenhaus
- Einbauküche aus 2024
- Gaszentralheizung aus 2024
- Fenster aus der Mitte der 1990er-Jahre
- Rollläden
- Vollkeller
Sonstiges
Die Riverside Real Estate GmbH bietet Immobilien aller Assetklassen zum Verkauf an, mit Standorten in Hameln-Pyrmont, Hannover, Bremen und Umgebung.
Wenn Sie mehr über uns erfahren möchten, besuchen Sie gerne unsere Homepage unter http://WWW.RIVERSIDE-ESTATE.DE. Dort finden Sie ausführliche Informationen über unser Unternehmen, unsere aktuellen Angebote und weitere Dienstleistungen. Zusätzlich bieten wir Ihnen eine unabhängige und kostenfreie Preiseinschätzung Ihrer Immobilie an.
Wir freuen uns darauf, Ihnen weiterzuhelfen und Ihnen bei Ihren Immobilienanliegen zur Seite zu stehen.
Die Angaben zum Objekt erfolgen im Namen unseres Auftraggebers und dienen lediglich zu Informationszwecken. Für die Richtigkeit und Vollständigkeit wird keine Haftung übernommen.
Lage
Gröpelingen ist ein lebendiger Stadtteil im Bremer Westen, der sich durch seine Vielfalt und Familienfreundlichkeit auszeichnet. Zahlreiche Grünflächen und die bekannte Gröpelinger Sportmeile laden zu Bewegung und Freizeitaktivitäten ein – ob Joggen, Radfahren, Klettern oder ein Besuch auf den Spiel- und Sportplätzen.
Für Kinder und Jugendliche gibt es zusätzlich spannende Angebote wie die Erlebnisfarm und den Kletterbunker, die Abenteuer und Spaß garantieren.
Auch kulinarisch hat Gröpelingen einiges zu bieten: Entlang der Hauptstraßen finden sich internationale Restaurants, gemütliche Cafés und Imbisse, die für Abwechslung sorgen. Für den täglichen Bedarf stehen mehrere Supermärkte und kleine Lebensmittelgeschäfte in fußläufiger Entfernung bereit.
Familien profitieren von einer guten Bildungsinfrastruktur – von Kindertagesstätten über Grundschulen bis hin zu weiterführenden Schulen ist alles vor Ort vorhanden. Ergänzt wird das Angebot durch Vereine und Kulturzentren, die ein aktives Miteinander fördern.
Dank der hervorragenden Anbindung an den öffentlichen Nahverkehr sind die Bremer Innenstadt und andere Stadtteile schnell erreichbar, während die Umgebung selbst mit ihren Freizeitmöglichkeiten und Naherholungsflächen überzeugt.
Gröpelingen verbindet urbanes Leben mit familiengerechter Infrastruktur und bietet damit ideale Voraussetzungen für ein Zuhause, in dem sich Groß und Klein wohlfühlen.
Wenn Sie die Immobilien-Karte anzeigen, übertragen Sie Daten an Google Maps (Datenschutzerklärung).
Die dargestellte Position der Immobilie ist nur eine ungefähre Angabe.



















