Startseite » Immobilien » Platz für die ganze Familie: Historisches Haus in Neuenwalde mit Pool und großzügigem Grundstück
Platz für die ganze Familie: Historisches Haus in Neuenwalde mit Pool und großzügigem Grundstück
27607 Geestland-Neuenwalde, Mehrfamilienhaus zum Kauf
Kontaktdaten
-
NameFrau Lynn Ülzmann
-
PositionSelbständige Immobilienmaklerin (IHK) | Vertriebsleitung Bremen
-
AnschriftContrescarpe 32
28203 Bremen -
E-Mail
-
Telefon
-
Telefon
-
Mobil
- zum Kontaktformular
Objektdaten
-
Objekt-ID2025-541
-
ObjekttypenHaus, Mehrfamilienhaus
-
Adresse27607 Geestland-Neuenwalde
-
Wohnfläche ca.316,68 m²
-
Nutzfläche ca.596,10 m²
-
Grundstück ca.3.611 m²
-
Zimmer11
-
Badezimmer4
-
Separate WC3
-
Balkone2
-
Terrassen1
-
KücheEinbauküche
-
HeizungsartZentralheizung
-
Wesentlicher EnergieträgerÖl
-
Baujahr1907
-
Garagenstellplätze4 Stellplätze
-
Carportstellplatz1 Stellplatz
-
Käuferprovision5,95 % inkl. 19 % MwSt.
-
Kaufpreis825.000 EUR
Ausstattung / Merkmale
- ✓ Balkon
- ✓ Denkmalgeschützt
- ✓ Einbauküche
- ✓ Garten/Gartennutzung
- ✓ Gäste-WC
- ✓ Kamin
- ✓ Separates WC
- ✓ Swimmingpool
- ✓ Teilunterkellert
- ✓ Terrasse
Energieausweis
-
Energieausweisnicht erforderlich
Objektbeschreibung
Beschreibung
Das historische Wohn- und Geschäftshaus, welches drei Wohneinheiten und eine Gewerbeeinheit umfasst, wurde im Jahr 1907 im beeindruckenden Jugendstil erbaut und steht seitdem als prägendes Haus von Neuenwalde. Die ornamentierte Schmuckfassade, die unter Denkmalschutz steht, verleiht dem Gebäude seinen einzigartigen Charakter und macht es zu einem wahren Blickfang.
Die Immobilie wurde über die Jahre fortlaufend modernisiert, ohne ihren historischen Charme zu verlieren. So wurde das Dach neu eingedeckt und mit einer Aufsparrendämmung versehen, die Elektrik vollständig erneuert und neue Fenster mit Zweifachverglasung eingebaut.
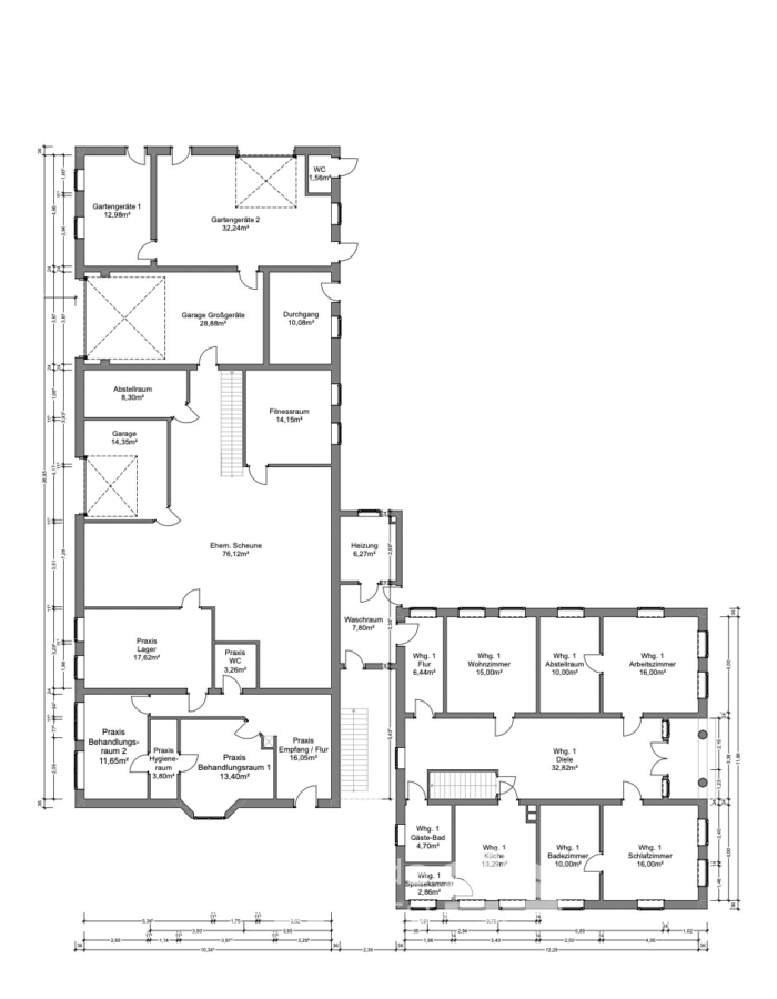
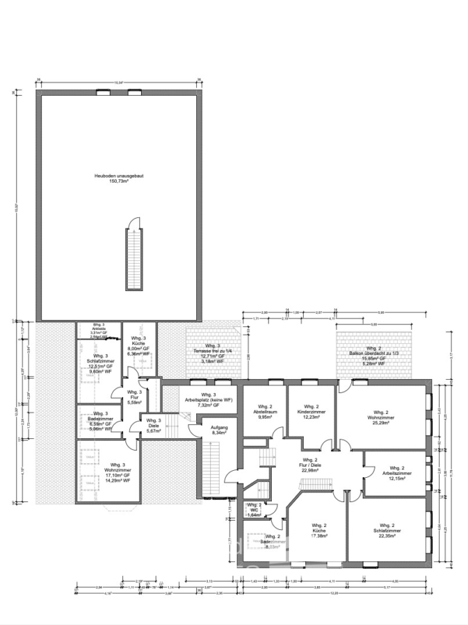
Die drei Wohneinheiten bieten insgesamt rund 317 m² Wohnraum und lassen viel Platz für Familienleben, persönliche Rückzugsorte und gemeinsames Miteinander. Die Wohnung im Erdgeschoss mit rund 127 m² überzeugt durch eine Fußbodenheizung und der guten Raumaufteilung.
Im Treppenhaus zu den Obergeschosswohnungen befindet sich ein schmiedeeisernes Geländer mit kunstvollen Schnörkeln. Dort finden Sie zwei weitere Wohnungen mit 137 m² und 52 m², wobei die größere Wohnung durch einen charmanten Kamin eine besonders gemütliche Atmosphäre bietet. Ergänzt wird das Haus durch eine Gewerbeeinheit mit 65 m², die sich ideal als Praxis oder Büro nutzen lässt.
Die Immobilie wird von drei Garagen, einer Großgarage sowie einem Carport ergänzt. Neben der Garage liegt eine Werkstatt, die Platz für handwerkliche Projekte oder kreative Hobbys bietet.
Ein echtes Highlight ist der Poolbereich mit Grill und Essbereich, der zu einer kleinen Wohlfühloase wird. Hier können Sie an sonnigen Tagen entspannen oder mit Familie und Freunden schöne Stunden verbringen – ein echter Luxus, den man nicht oft findet.
Zusätzlich können Sie zwei Grundstücke direkt hinter dem Haus erwerben. Sie umfassen insgesamt rund 2.605 m² und bieten vielfältige Möglichkeiten zur individuelle Erweiterungsmöglichkeiten.
Das Haus ist perfekt für Familien, die großzügigen Wohnraum suchen, aber sich auch vorstellen können, einen Teil zu vermieten. So können Sie selbst einziehen und den Rest des Hauses als zusätzliche Einnahmequelle nutzen – eine flexible Möglichkeit, die Wohnkosten zu reduzieren und gleichzeitig den eigenen Lebensraum optimal zu nutzen.
Wenn Sie auf der Suche nach einem Zuhause mit Charakter, Lebensqualität und viel Platz für die ganze Familie sind, dann ist dieses Wohn- und Geschäftshaus genau das Richtige für Sie.
Wir freuen uns auf Ihre Anfrage – lassen Sie sich vor Ort von diesem besonderen Anwesen überzeugen.
Ausstattung
- 3 Wohneinheiten, 1 Gewerbeeinheit
- Wohnfläche gesamt: 316,68 m²
- Gewerbefläche Gesamt: 65,78 m²
- Zusätzliche Nutzfläche: ca. 596,10 m²
- Baujahr Haupthaus: 1907
- Baujahr Nebenhaus (ehem. Scheune): 1864
- 2 Baugrundstücke hinter dem Haus können ebenfalls erworben werden
(zusätzlich ca. 2.605 m²)
- 3 normale Garagen + 1 Carport
- 1 Großgarage (7,20 m lang , 3,20 m breit, 2,50 m hoch)
- Werkstatt neben Garage
- 2 Balkone
- Gäste-WCs
- Denkmalschutz seit ca. 30 Jahren
- Gepflasterter Poolbereich mit Grill, Essplatz + Pool-WC
- Öl-Zentralheizung von 2003
- 2-fach verglaste Fenster aus 2011
- 2 Kachelöfen mit Bestandsschutz
- 2023 Dacheindeckung neu + Aufsparrendämmung
- Elektrik neu
- PV-Anlage mit 13 kWp (generiert 260€ Nettomiete monatlich, Vertrag läuft noch ca. 6 Jahre)
- viele Nebenräume und Nutzräume
- Kamin in Wohnung im Obergeschoss
- Fußbodenheizung in Wohnung im EG im Haupthaus + in Praxis im Nebenhaus
- zentrale Staubsaugeranlage in Praxis und Wohnung 2 OG
- Einblasdämmung im Haupthaus
- Möglichkeit die Gewerbeeinheit als vierte Wohnung umzunutzen
- Energieausweis gemäß § 79 Abs. 4 GEG für Haupthaus nicht erforderlich, da unter Denkmalschutz
- Energiebedarfsausweis für Nebenhaus (Baujahr 1864, gültig bis 06.09.2035, Energiebedarfsklasse F: 169,0 kWh)
Aufteilung
- Wohnung 1 (EG): ca. 127,11 m² auf 4 Zimmern (Haupthaus Erdgeschoss)
- Wohnung 2: ca. 137,28 m² auf 5 Zimmern (Haupthaus Obergeschoss)
- Wohnung 3: ca. 52,29 m² auf 2 Zimmern (Nebenhaus Obergeschoss)
- Praxis: ca. 65,78 m² (Nebenhaus Erdgeschoss)
Sonstiges
Die Riverside Real Estate GmbH bietet Immobilien aller Assetklassen zum Verkauf an, mit Standorten in Hameln-Pyrmont, Hannover, Bremen und Umgebung.
Wenn Sie mehr über uns erfahren möchten, besuchen Sie gerne unsere Homepage unter http://WWW.RIVERSIDE-ESTATE.DE. Dort finden Sie ausführliche Informationen über unser Unternehmen, unsere aktuellen Angebote und weitere Dienstleistungen. Zusätzlich bieten wir Ihnen eine unabhängige und kostenfreie Preiseinschätzung Ihrer Immobilie an.
Wir freuen uns darauf, Ihnen weiterzuhelfen und Ihnen bei Ihren Immobilienanliegen zur Seite zu stehen.
Die Angaben zum Objekt erfolgen im Namen unseres Auftraggebers und dienen lediglich zu Informationszwecken. Für die Richtigkeit und Vollständigkeit wird keine Haftung übernommen.
Lage
Die Immobilie befindet sich in Neuenwalde, einer charmanten Ortschaft der Stadt Geestland im niedersächsischen Landkreis Cuxhaven. Sie verbindet eine ruhige, angenehme Wohnumgebung mit einer hervorragenden Anbindung.
Dank der zentralen Lage zwischen Bremerhaven und Cuxhaven profitieren Sie von den Vorteilen beider Städte: Bremerhaven mit seiner maritimen Vielfalt und den kulturellen Angeboten erreichen Sie in etwa 15 Minuten.
In rund 20 Minuten sind Sie in den Cuxhavener Ortsteilen Duhnen und Döse, wo lange Sandstrände, gemütliche Terrassenbars und Restaurants direkt am Meer auf Sie warten
Die nächste Autobahnauffahrt in Neuenwalde zur A27 ist nur wenige Minuten entfernt, sodass Bremen in rund 50 Minuten bequem zu erreichen ist. Auch die Bundesstraße B73 liegt in unmittelbarer Nähe und ermöglicht schnelle Verbindungen in alle Richtungen.
Einkaufsmöglichkeiten für den täglichen Bedarf befinden sich nur wenige Minuten entfernt. Supermärkte wie Edeka sowie verschiedene Fachgeschäfte, Bäckereien und eine Tankstelle sind bequem zu Fuß oder mit dem Auto erreichbar.
Für Familien besonders attraktiv: Sie können Ihre Kinder problemlos zu Fuß zur Schule und zum Kindergarten bringen, und auch Freizeitangebote gibt es direkt im Ort.
Neuenwalde vereint Ruhe, gute Infrastruktur und Familienfreundlichkeit – hier lässt sich ein Zuhause mit viel Platz und hoher Lebensqualität verwirklichen.
Wenn Sie die Immobilien-Karte anzeigen, übertragen Sie Daten an Google Maps (Datenschutzerklärung).
Die dargestellte Position der Immobilie ist nur eine ungefähre Angabe.

































