Startseite » Immobilien » Vollersode|Renovierungsbedürftiges Wohnhaus mit großem Grundstück
Vollersode|Renovierungsbedürftiges Wohnhaus mit großem Grundstück
27729 Vollersode, Einfamilienhaus zum Kauf
Kontaktdaten
-
NameHerr Artur Vidmer
-
AnschriftContrescarpe 32
28203 Bremen -
E-Mail
-
Telefon
-
Telefon
-
Mobil
- zum Kontaktformular
Objektdaten
-
Objekt-ID2026-570
-
ObjekttypenEinfamilienhaus, Haus
-
Adresse27729 Vollersode
-
Etagen im Haus2
-
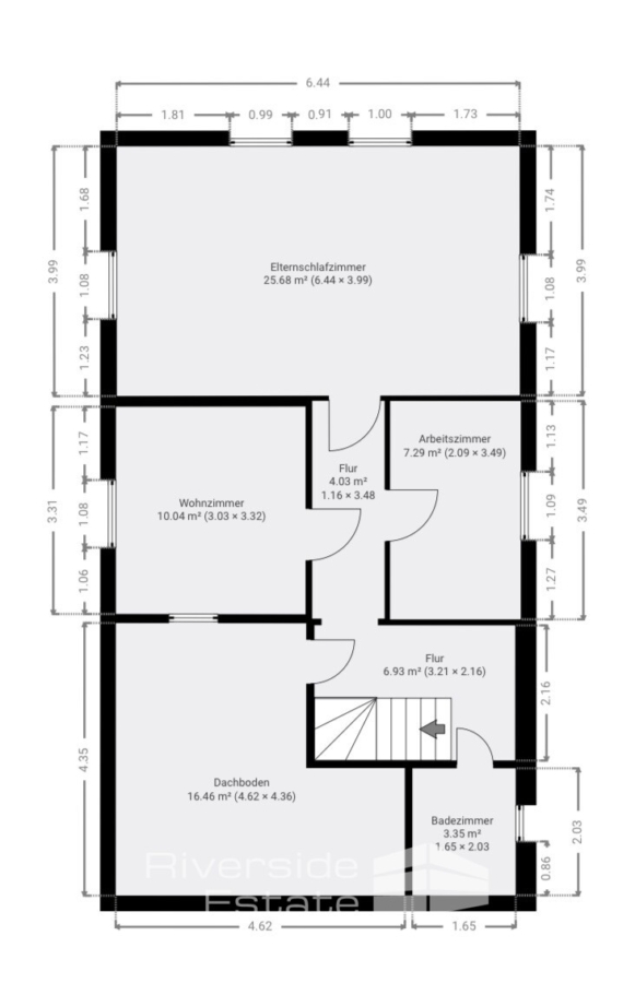
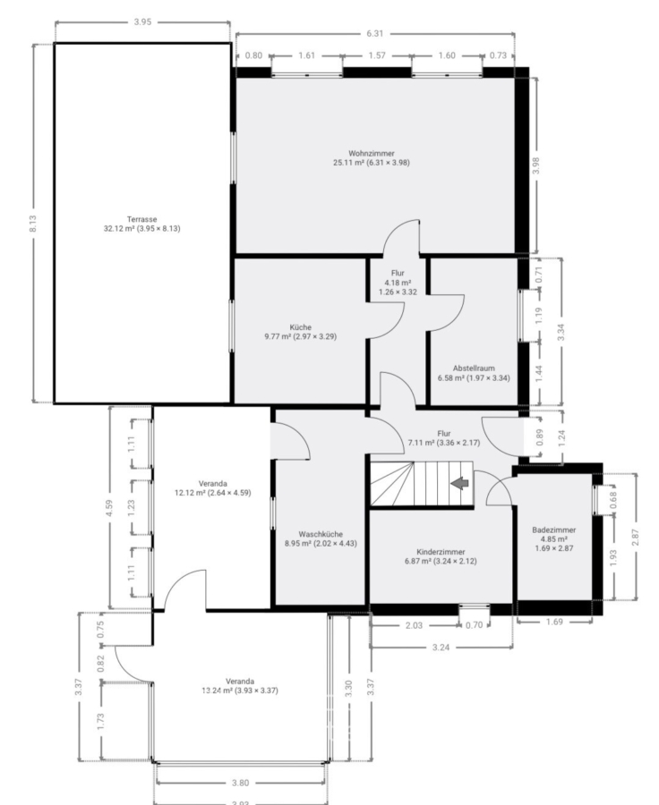
Wohnfläche ca.128,60 m²
-
Nutzfläche ca.38,91 m²
-
Grundstück ca.2.249 m²
-
Zimmer5
-
Schlafzimmer4
-
Badezimmer2
-
Terrassen1
-
Baujahr1953
-
Zustandrenovierungsbedürftig
-
BauweiseMassiv
-
Käuferprovision3,57 % inkl. 19 % MwSt.
-
Kaufpreis159.000 EUR
Ausstattung / Merkmale
- ✓ Badewanne
- ✓ Dusche
- ✓ Garage
- ✓ Kamin
- ✓ Keller
- ✓ Massivbauweise
- ✓ Tageslichtbad
- ✓ Terrasse
Energieausweis
-
EnergieausweistypBedarfsausweis
-
Gültig bis24.09.2026
-
GebäudeartWohngebäude
-
Baujahr lt. Energieausweis1953
-
PrimärenergieträgerÖl
-
Endenergiebedarf182,70 kWh/(m²·a)
-
EnergieeffizienzklasseF
Objektbeschreibung
Beschreibung
Dieses Einfamilienhaus aus dem Baujahr circa 1953 präsentiert sich als solide, jedoch deutlich renovierungsbedürftige Immobilie mit vielseitigem Entwicklungspotenzial. Die Wohnfläche von ca. 128,60 m² verteilt sich auf insgesamt fünf Zimmer, wodurch verschiedene Nutzungsmöglichkeiten bestehen, auch wenn der aktuelle Zustand Modernisierungsmaßnahmen in mehreren Bereichen erforderlich macht.
Die vier Schlafzimmer bieten grundsätzlich ausreichend Platz für Familien oder Personen mit erhöhtem Raumbedarf, während die zwei vorhandenen Badezimmer ebenfalls nicht mehr dem heutigen Standard entsprechen und eine Sanierung benötigen. Ergänzend zur Wohnfläche stehen ca. 38,91 m² Nutzfläche zur Verfügung, die derzeit überwiegend als Abstell- und Funktionsräume genutzt werden. Diese Bereiche eignen sich beispielsweise für Hobby, Werkstatt oder Lager, weisen jedoch ebenfalls renovierungsbedürftige Elemente auf.
Das großzügige Grundstück mit einer Fläche von ca. 2249 m² stellt ein besonderes Merkmal dieser Immobilie dar und eröffnet vielfältige Optionen. Eine Teilung des Grundstücks ist grundsätzlich möglich, und unter der Voraussetzung potenzieller Baumfällungen kann ein Teil des Geländes als Baugrundstück in Betracht kommen.
Bereits vorliegende Teilungsvorschläge bieten erste Anhaltspunkte, ersetzen jedoch nicht die notwendigen behördlichen Genehmigungen, die von Interessenten einzuholen wären. Eine vorhandene Garage bietet zusätzliche Abstellmöglichkeiten, befindet sich jedoch wie große Teile des Hauses ebenfalls in einem Zustand, der Renovierungen erforderlich macht.
Insgesamt richtet sich diese Immobilie an Käufer, die bereit sind, in Sanierungsmaßnahmen zu investieren, den Charme eines älteren Hauses schätzen und langfristig das Potenzial des großen Grundstücks für eigene Vorstellungen oder mögliche Entwicklungen nutzen möchten.
Ausstattung
- ca. 128,60 m² Wohnfläche
- ca. 38,91 m² Nutzfläche
- ca. 2249 m² Grundstück
- vermietet
- Baujahr ca. 1953
- 5 Zimmer
- 4 Schlafzimmer
- 2 Badezimmer
- Garage
- Teilungsvorschlag liegt vor
- relevante Sanierungsmaßnahmen:
- Elektroinstallation erneuert
- 2011 Heizung erneuert
- 2015 Außendämmung angebracht und mit Riemchen versehen
- 2015 2x Fenster Schlafzimmer erneuert
- 2018 4x große Velux-Fenster erneuert
- 2018 Schornstein mit Naturschiefer versehen
- 2018 Blitzableiter installliert und SAT-Anlage komplett erneuert
- 2018 Umbau im Innenbereich mit neuer Raumaufteilung inkl. neuer Innenraumtüren
- 2020 Terrasse angelegt
- 2021 Ofenkamin mit Außenschornstein installiert
- 2022 Dach und Dachrinne vom Wintergarten erneuert
Sonstiges
Wir bieten Immobilien aller Assetklassen zum Verkauf an, mit Standorten in Hameln-Pyrmont, Hannover, Bremen und Umgebung.
Wenn Sie mehr über uns erfahren möchten, besuchen Sie gerne unsere Homepage unter http://WWW.RIVERSIDE-ESTATE.DE. Dort finden Sie ausführliche Informationen über unser Unternehmen, unsere aktuellen Angebote und weitere Dienstleistungen. Zusätzlich bieten wir Ihnen eine unabhängige und kostenfreie Preiseinschätzung Ihrer Immobilie an.
Wir freuen uns darauf, Ihnen weiterzuhelfen und Ihnen bei Ihren Immobilienanliegen zur Seite zu stehen.
Die Angaben zum Objekt erfolgen im Namen unseres Auftraggebers und dienen lediglich zu Informationszwecken. Für die Richtigkeit und Vollständigkeit wird keine Haftung übernommen.
Lage
Die Immobilie befindet sich in einer ruhigen und familienfreundlichen Wohnlage, die durch viel Natur, ein entspanntes Umfeld und ein gewachsenes nachbarschaftliches Miteinander geprägt ist.
Die umliegende Landschaft mit Wiesen, Feldern und kleineren Waldabschnitten schafft ein harmonisches Wohngefühl und bietet eine angenehme Kulisse für Spaziergänge, Fahrradtouren und gemeinsame Unternehmungen im Freien.
Für Familien stehen vielfältige Bildungsangebote zur Verfügung. Kindergärten sowie Schulen unterschiedlicher Stufen sind in den benachbarten Orten schnell erreichbar und sorgen für eine zuverlässige Betreuung und einen gut strukturierten Bildungsweg.
Ergänzt wird dies durch nahegelegene Freizeit und Sportmöglichkeiten, darunter Sportvereine, Reitangebote, Spielplätze und Naturflächen, die Raum für Bewegung und Erholung bieten. Einkaufsmöglichkeiten für den täglichen Bedarf befinden sich in kurzer Fahrdistanz.
Supermärkte, Bäckereien und kleinere Fachgeschäfte sichern eine bequeme Versorgung. Darüber hinaus laden gemütliche Gaststätten und Cafés der Umgebung zu entspannten Stunden ein und bieten Gelegenheit für gesellige Treffen mit Familie und Freunden. Die verkehrstechnische Anbindung ist komfortabel und ermöglicht schnelle Wege in die umliegenden Gemeinden sowie in größere Städte wie Bremen.
Dadurch verbinden sich ruhiges Wohnen im Grünen und eine gute Erreichbarkeit aller wichtigen Ziele auf angenehme Weise. Die Lage bietet somit ideale Voraussetzungen für Familien, die sowohl Natur und Entspannung als auch kurze Wege zu Alltagseinrichtungen schätzen.
Wenn Sie die Immobilien-Karte anzeigen, übertragen Sie Daten an Google Maps (Datenschutzerklärung).
Die dargestellte Position der Immobilie ist nur eine ungefähre Angabe.




