Startseite » Immobilien » Exklusive Villa mit Panoramablick auf den Millstätter See in Seeboden!
Exklusive Villa mit Panoramablick auf den Millstätter See in Seeboden!
9871 Seeboden, Einfamilienhaus zum Kauf
Kontaktdaten
-
NameHerr Nico Runge
-
PositionSelbstständiger Immobilienmakler
-
AnschriftErichstraße 16
31785 Hameln -
E-Mail
-
Telefon
-
Telefon
-
Mobil
- zum Kontaktformular
Objektdaten
-
Objekt-ID2025-488
-
ObjekttypenEinfamilienhaus, Haus
-
Adresse9871 Seeboden
-
Wohnfläche ca.326 m²
-
Grundstück ca.1.200 m²
-
Zimmer6
-
Schlafzimmer3
-
Badezimmer3
-
Separate WC2
-
Balkone1
-
Terrassen1
-
KücheEinbauküche
-
Wesentlicher EnergieträgerErdwärme
-
Baujahr2008
-
Zustandmodernisiert
-
BauweiseMassiv
-
Käuferprovision3,00 % inkl. 20 % MwSt.
-
Kaufpreis1.800.000 EUR
Ausstattung / Merkmale
- ✓ Außenstellplatz
- ✓ Badewanne
- ✓ Balkon
- ✓ Dusche
- ✓ Einbauküche
- ✓ Garage
- ✓ Garten/Gartennutzung
- ✓ Gäste-WC
- ✓ Massivbauweise
- ✓ Satteldach
- ✓ Separates WC
- ✓ Tageslichtbad
- ✓ Terrasse
Energieausweis
-
EnergieausweistypBedarfsausweis
-
Gültig bis21.07.2035
-
GebäudeartWohngebäude
-
Baujahr lt. Energieausweis2008
-
Wesentlicher EnergieträgerErdwärme
-
Endenergiebedarf22,20 kWh/(m²·a)
-
EnergieeffizienzklasseA+
Objektbeschreibung
Beschreibung
Diese im Jahr 2008 erbaute Villa in Seeboden am Millstätter See vereint moderne Architektur mit einer spektakulären Aussichtslage. Auf einem rund 1.200 m² großen Grundstück thront die Immobilie über dem See und eröffnet einen Panoramablick, der bereits beim Betreten der Räume Gänsehaut auslöst.
Das Erdgeschoss empfängt mit einem großzügigen Eingangsbereich und führt direkt in den offenen Wohn- und Essbereich mit hochwertiger Einbauküche. Hier öffnet sich der Raum über breite Fensterfronten und eine große Terrassentür hinaus auf die rund 40 m² große Sonnenterrasse. Von hier genießt man einen unvergleichlichen Blick über den See und die umliegende Bergwelt – der zentrale Logenplatz der Villa.
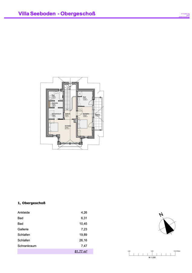
Im Obergeschoss wird die Architektur konsequent auf den Ausblick fortgeführt. Bereits beim Hinaufgehen der Treppe eröffnet sich durch die Fensterfront der direkte Blick auf den See – ein Detail, das die Großzügigkeit und die Ausrichtung des Hauses perfekt unterstreicht.
Das Master-Schlafzimmer verfügt über ein elegantes Bad en suite sowie einen eigenen Balkon mit Panorama-Seeblick. Dieser private Bereich verbindet Komfort, Privatsphäre und eine Aussicht, die ihresgleichen sucht. Ergänzt wird die Etage durch weitere Schlafzimmer und ein zusätzliches Badezimmer.
Das Souterrain profitiert von der Hanglage und bietet helle Räume mit Tageslicht, separatem Zugang, einem eigenen Vollbad, Gäste-WC sowie der Möglichkeit einer zweiten Einbauküche. Diese Ebene eignet sich ideal für Gäste, eine Einliegerwohnung, Homeoffice oder Freizeitbereiche.
Die Villa bietet insgesamt sechs Zimmer, darunter drei Schlafzimmer, drei Bäder sowie zwei Gäste-WCs. Eine hochwertige Einbauküche ist im Erdgeschoss bereits vorhanden, eine zweite ist im Souterrain vorgesehen. Beheizt wird die Immobilie über eine Erdwärmeheizung. Eine großzügige Doppelgarage mit elektrischem Sektionaltor sowie zusätzliche Stellflächen komplettieren das Angebot. Außerdem verfügt die Immobilie über eine Photovoltaik-Anlage mit einer Leistung von 5 kWp.
Das ca. 1.200 m² große Grundstück eröffnet vielfältige Gestaltungsmöglichkeiten – von einer erweiterten Gartenlandschaft über eine Poolanlage bis hin zu Outdoor-Living-Konzepten.
Während sich die Villa in einem gepflegten Zustand präsentiert, bieten insbesondere das Souterrain und die rückwärtigen Außenbereiche noch Raum für Modernisierung und individuelle Gestaltung. Dadurch entsteht die Chance, ein bereits außergewöhnliches Anwesen nach eigenen Vorstellungen weiter zu veredeln und seinen Wert nachhaltig zu steigern.
Diese Villa ist ein Ort, an dem Ausblick, Architektur und Lebensqualität zu einem unvergleichlichen Wohnerlebnis verschmelzen – und das in einer der schönsten Regionen Kärntens.
Ausstattung
- Baujahr 2008
- Grundstücksgröße ca. 1.200 m²
- Wohnfläche ca. 326 m²
- Moderne Architektur in Hanglage mit Panoramablick über den Millstätter See
- Ca. 40 m² große Sonnenterrasse mit spektakulärer Aussicht
- Offener Wohn- und Essbereich mit hochwertiger Einbauküche
- Master-Schlafzimmer mit Bad en suite und Balkon mit Seeblick
- Insgesamt 6 Zimmer, davon 3 Schlafzimmer
- 3 Badezimmer und 2 Gäste-WCs
- Souterrain mit separatem Zugang, Tageslicht, Vollbad, Gäste-WC und Möglichkeit für zweite Einbauküche
- Effiziente Erdwärmeheizung
- PV-Anlage mit 5 kWp
- Doppelgarage mit elektrischem Sektionaltor
- Zusätzliche Außenstellplätze
- Vielfältige Gestaltungsmöglichkeiten des Grundstücks (z. B. Garten, Pool, Outdoor-Living)
- Gepflegter Gesamtzustand mit zusätzlichem Modernisierungspotenzial
Sonstiges
Die Riverside Real Estate GmbH bietet Immobilien aller Assetklassen zum Verkauf an, mit Standorten in Hameln-Pyrmont, Hannover, Bremen und Umgebung. Zudem sind wir Exklusivpartner für die Vermarktung hochwertiger Immobilien in Österreich.
Wenn Sie mehr über uns erfahren möchten, besuchen Sie gerne unsere Homepage unter http://WWW.RIVERSIDE-ESTATE.DE. Dort finden Sie ausführliche Informationen über unser Unternehmen, unsere aktuellen Angebote und weitere Dienstleistungen. Zusätzlich bieten wir Ihnen eine unabhängige und kostenfreie Preiseinschätzung Ihrer Immobilie an.
Wir freuen uns darauf, Ihnen weiterzuhelfen und Ihnen bei Ihren Immobilienanliegen zur Seite zu stehen.
Die Angaben zum Objekt erfolgen im Namen unseres Auftraggebers und dienen lediglich zu Informationszwecken. Für die Richtigkeit und Vollständigkeit wird keine Haftung übernommen.
Lage
Seeboden am Millstätter See gilt als eine der privilegiertesten Wohn- und Ferienadressen Kärntens. Eingebettet zwischen dem glasklaren See und den sanften Höhenzügen der Nockberge vereint der Standort Naturidylle, Lebensqualität und erstklassige Infrastruktur auf einzigartige Weise.
Nur wenige Minuten vom Ufer des Millstätter Sees entfernt, eröffnet sich ein außergewöhnliches Freizeitangebot: Segeln, Baden im Sommer, ausgedehnte Spaziergänge entlang der Promenaden sowie Wintersportmöglichkeiten in den umliegenden Skigebieten. Die Kombination aus alpinem Charme und mediterranem Klima verleiht dieser Region eine ganz besondere Anziehungskraft.
Seeboden selbst überzeugt durch seine hohe Wohnqualität mit ausgezeichneten Einkaufsmöglichkeiten, gastronomischer Vielfalt, Schulen, Kindergärten und medizinischer Versorgung. Die nahe Bezirkshauptstadt Spittal an der Drau ergänzt das Angebot durch weitere städtische Einrichtungen und kulturelle Angebote.
Über die A10 Tauernautobahn ist die Lage zudem hervorragend angebunden: Die Städte Villach und Klagenfurt erreichen Sie in kurzer Fahrzeit, ebenso die Nachbarländer Italien und Slowenien. Damit wird Seeboden zum idealen Ausgangspunkt für internationale Verbindungen, ohne auf Ruhe und Exklusivität verzichten zu müssen.
Die besondere Kombination aus Seelage, alpiner Kulisse und erstklassiger Infrastruktur macht diesen Standort zu einem der begehrtesten Wohn- und Ferienorte Kärntens – und zu einer exzellenten Wahl für Menschen, die Wert auf Lebensqualität, Naturverbundenheit und Werthaltigkeit legen.
Wenn Sie die Immobilien-Karte anzeigen, übertragen Sie Daten an Google Maps (Datenschutzerklärung).
9871 Seeboden, Deutschland (auf Google Maps ansehen)





























