Startseite » Immobilien » Hameln-Ohrberg | Einfamilienhaus auf Erbpachtgrundstück mit viel Potenzial!
Hameln-Ohrberg | Einfamilienhaus auf Erbpachtgrundstück mit viel Potenzial!
31789 Hameln / Klein Berkel, Einfamilienhaus zum Kauf
Kontaktdaten
-
NameHerr Nico Runge
-
PositionSelbstständiger Immobilienmakler
-
AnschriftErichstraße 16
31785 Hameln -
E-Mail
-
Telefon
-
Telefon
-
Mobil
- zum Kontaktformular
Objektdaten
-
Objekt-ID2025-540
-
ObjekttypenEinfamilienhaus, Haus
-
Adresse31789 Hameln / Klein Berkel
-
Wohnfläche ca.118,36 m²
-
Nutzfläche ca.191,10 m²
-
Grundstück ca.969 m²
-
Zimmer5
-
Schlafzimmer3
-
Badezimmer1
-
Separate WC1
-
Terrassen1
-
Wesentlicher EnergieträgerÖl
-
Baujahr1971
-
BauweiseMassiv
-
Käuferprovision3,00 % inkl. 19 % MwSt.
-
Kaufpreis195.000 EUR
Ausstattung / Merkmale
- ✓ Außenstellplatz
- ✓ Garage
- ✓ Garten/Gartennutzung
- ✓ Gäste-WC
- ✓ Keller
- ✓ Massivbauweise
- ✓ Satteldach
- ✓ Separates WC
- ✓ Terrasse
Energieausweis
-
EnergieausweistypBedarfsausweis
-
Gültig bis19.01.2036
-
GebäudeartWohngebäude
-
Baujahr lt. Energieausweis1901
-
PrimärenergieträgerÖl
-
Endenergiebedarf271,90 kWh/(m²·a)
-
EnergieeffizienzklasseH
Objektbeschreibung
Beschreibung
Dieses Einfamilienhaus befindet sich in ruhiger und begehrter Wohnlage von Hameln am Ohrberg und überzeugt durch eine solide Bausubstanz sowie vielseitige Nutzungsmöglichkeiten. Die Immobilie eignet sich ideal für Eigennutzer mit Sanierungsambitionen oder Käufer, die ein Haus nach eigenen Vorstellungen modernisieren möchten.
Das Gebäude wurde im Baujahr 1971 errichtet und wird über eine Ölheizung beheizt. Der bauliche Zustand ist insgesamt als sanierungsbedürftig einzustufen, bietet jedoch eine gute Grundlage für eine nachhaltige Wertentwicklung.
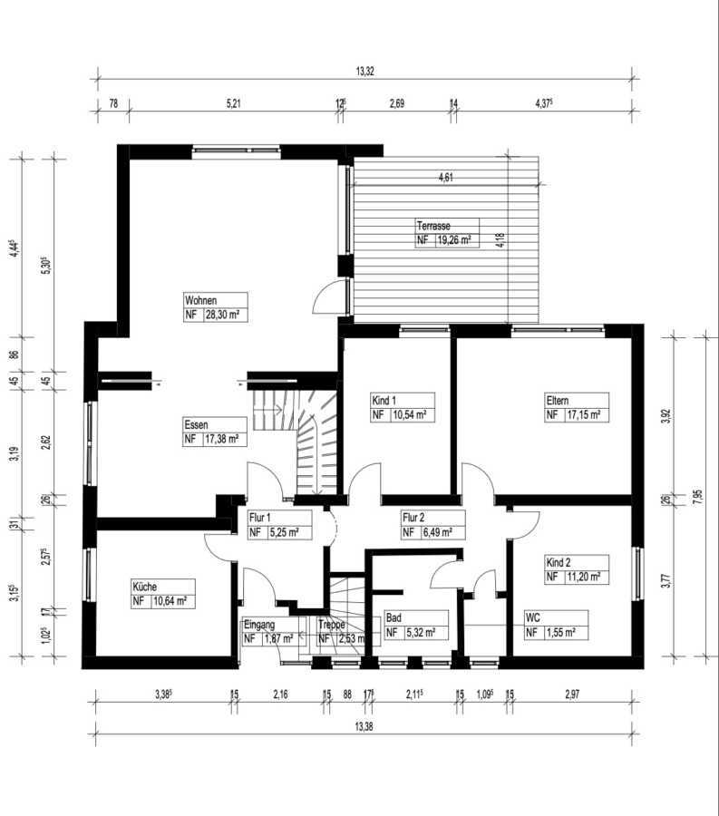
Die Wohnfläche beträgt ca. 118 m² und befindet sich im Erdgeschoss des Hauses. Das Grundstück umfasst ca. 969 m² und bietet großzügige Flächen für Garten, Freizeit und individuelle Gestaltung.
Im Erdgeschoss stehen insgesamt fünf Zimmer, eine Küche, ein Badezimmer sowie ein separates Gäste-WC zur Verfügung. Die Raumaufteilung ist funktional und familienfreundlich gestaltet und eignet sich sowohl für klassisches Wohnen als auch für Homeoffice-Konzepte.
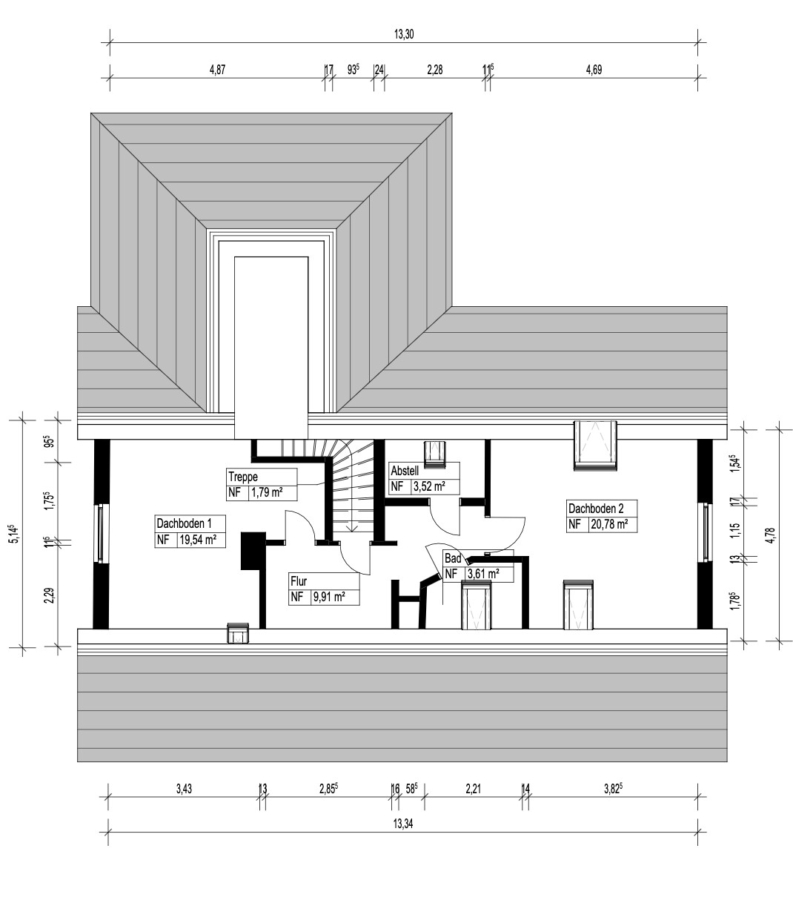
Im Dachgeschoss befinden sich zwei weitere Zimmer sowie ein Badezimmer, welche nicht als Wohnfläche ausgewiesen sind und somit zusätzliche Nutzfläche darstellen. Auch im Keller steht weitere Nutzfläche zur Verfügung, die sich flexibel als Lager-, Hobby- oder Arbeitsbereich nutzen lässt.
Das Objekt befindet sich aktuell auf einem Erbpachtgrundstück. Der Erwerb des Grundstücks ist jedoch möglich, sodass perspektivisch auch der Übergang in Volleigentum realisiert werden kann.
Insgesamt handelt es sich um eine Immobilie mit guter Substanz, großzügigem Platzangebot und attraktiver Lage am Ohrberg – eine ideale Basis für ein individuelles Zuhause.
Ausstattung
- Einfamilienhaus in ruhiger Wohnlage von Hameln – Ohrberg
- Baujahr ca. 1971
- Ca. 118 m² Wohnfläche (Erdgeschoss)
- Grundstück ca. 969 m² (Erbpachtgrundstück)
- 5 Zimmer, Küche, Bad und Gäste-WC im Erdgeschoss
- 2 Räume sowie 1 Badezimmer im Dachgeschoss (Nutzfläche, keine Wohnfläche)
- unterkellert mit weiterer Nutzfläche
- Ölheizung
- Terrasse
- Garage
- Erbpachtgrundstück
- Grundstückserwerb möglich
Sonstiges
Die Riverside Real Estate GmbH bietet Immobilien aller Assetklassen zum Verkauf an, mit Standorten in Hameln-Pyrmont, Hannover, Bremen und Umgebung.
Wenn Sie mehr über uns erfahren möchten, besuchen Sie gerne unsere Homepage unter http://WWW.RIVERSIDE-ESTATE.DE. Dort finden Sie ausführliche Informationen über unser Unternehmen, unsere aktuellen Angebote und weitere Dienstleistungen. Zusätzlich bieten wir Ihnen eine unabhängige und kostenfreie Preiseinschätzung Ihrer Immobilie an.
Lage
Die Immobilie befindet sich in einer ruhigen, familienfreundlichen Wohngegend am westlichen Stadtrand von Hameln. Die Umgebung besticht durch gepflegte Ein- bis Zweifamilienhäuser, grüne Vorgärten und eine behagliche Nachbarschaft, die ein entspanntes Wohnambiente schafft.
Fußläufig erreichbar finden sich kleine Grünflächen, Spielplätze und Erholungszonen, die zu entspannten Spaziergängen oder sportlicher Aktivität im Freien einladen. Die ruhigen Straßenränder und die gepflegte Bepflanzung vermitteln ein harmonisches Ortsbild, das Ruhe und Sicherheit vermittelt.
Mehrere Buslinien verbinden Hameln-Zentrum und umliegende Ortsteile. Zentrale Haltestellen befinden sich in erreichbarer Nähe, wodurch schnelle Verbindungen in die Innenstadt sowie zu Einkaufs- und Bildungseinrichtungen möglich sind.
Die Lage bietet kurze Wege zu wichtigen Hauptverkehrsachsen; schnell erreichbar sind Bundes- und Landstraßen, die Verbindungen zu benachbarten Städten und zum Umland ermöglichen.
Ausgebaute Radwege führen direkt ins Stadtzentrum sowie entlang reizvoller Uferbereiche – ideal für Pendler und Freizeitradler gleichermaßen.
In fußläufiger Reichweite oder in kurzen Fahrwegen finden sich Nahversorger, Bäcker, Supermärkte und Apotheken, was den täglichen Bedarf bequem abdeckt.
Kindergärten, Grundschulen und weitere Bildungseinrichtungen sind gut erreichbar, was die Lage besonders attraktiv für Familien macht. Nahegelegene Schulen bieten flexible Wege für unterschiedliche Altersstufen.
Ärzte, Apotheken und weitere medizinische Einrichtungen befinden sich in der Umgebung und sind rasch erreichbar, was kurze Wege zu Gesundheitsdienstleistungen bedeutet.
Wenn Sie die Immobilien-Karte anzeigen, übertragen Sie Daten an Google Maps (Datenschutzerklärung).
Die dargestellte Position der Immobilie ist nur eine ungefähre Angabe.
























