Startseite » Immobilien » Über 1000m² Lager- und Gewerbehalle im Gewerbegebiet Oyten
Über 1000m² Lager- und Gewerbehalle im Gewerbegebiet Oyten
28876 Oyten, Lager zur Miete
Kontaktdaten
-
NameHerr Jens Grötzner
-
PositionImmobilienmakler / B.A. Architektur / Energieeffizienzexperte der DENA
-
FirmaRiverside Real Estate GmbH
-
AnschriftContrescarpe 32
28203 Bremen -
E-Mail
-
Telefon
-
Telefon
- zum Kontaktformular
Objektdaten
-
Objekt-ID2026-543
-
ObjekttypenHalle/Lager/Produktion, Lager
-
Adresse28876 Oyten
-
Gesamtfläche ca.1.180 m²
-
Lagerfläche ca.1.130 m²
-
Baujahr1990
-
Zustandnach Vereinbarung
-
Verfügbar ab01.09.2025
-
Mieterprovision (gewerblich)1,5 Nettokaltmieten zzgl. Mwst.
-
Kaution2 Kaltmieten
-
Nettokaltmiete4.895,00 EUR
-
Kaltmiete4.895,00 EUR
-
Summe Miete netto4.895,00 EUR
-
Nebenkosten1.100,00 EUR
-
Heizkosten1.100,00 EUR (in der Warmmiete enthalten)
-
Warmmiete5.995,00 EUR (Heizkosten enthalten)
Ausstattung / Merkmale
- ✓ Fliesenboden
- ✓ Gewerblich nutzbar
- ✓ Kein Keller
Energieausweis
-
EnergieausweistypVerbrauchsausweis
-
Gültig bis17.02.2031
-
GebäudeartNichtwohngebäude
-
Baujahr1990
-
PrimärenergieträgerErdgas leicht
-
Endenergieverbrauch Strom29,60 kWh/(m²·a)
-
Endenergieverbrauch Wärme202,00 kWh/(m²·a)
Objektbeschreibung
Beschreibung
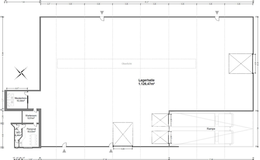
Zur Vermietung steht eine vielseitig nutzbare, beheizte Gewerbehalle im Gewerbegebiet Oyten – verfügbar ab dem 01. August 2025. Die 1990 errichtete Immobilie eignet sich ideal für Lager- und Montagearbeiten, während eine Produktion eingeschränkt möglich ist. Die Fläche der Lager- und Montagehalle beträgt ca. 1.130 m².
Die Halle verfügt über zwei LKW-Rampen sowie zwei ebenerdige Tore, was eine flexible und effiziente Andienung ermöglicht. Dank der Außenumfahrung für LKWs ist ein komfortables Rangieren ohne Wendemanöver möglich. Die Deckenhöhe beträgt zwischen 4,80 m und 6,15 m und bietet auch für hochregalbasierte Lagerlösungen optimale Voraussetzungen.
Ein besonderes Highlight ist das dreigeschossige Handlager, das zusammen mit zusätzlichen Lagerregalen (7.000kg bis 9.000kg Feldlast) eine strukturierte Lagerlogistik ermöglicht. Ein Außenlager ist nach Absprache realisierbar.
Ein ca. 17 m² großes Meisterbüro, ein Personalraum mit Küche und WC, sowie vier separate Personalzugänge bieten gute Arbeitsbedingungen. Für die Beheizung sorgt eine Gasheizung, der Stromanschluss ist mit 60 kW ausreichend leistungsfähig. Es stehen zudem 12 PKW-Stellplätze für Mitarbeitende zur Verfügung.
Ausstattung
- Beheizte Halle mit ca. 1.130 m² Lagerfläche
- Deckenhöhe von min. 4,80 m bis max. 6,15 m
- 2 LKW-Rampen und 2 ebenerdige Tore für flexible Anlieferung
- LKW-Umfahrung der Halle möglich – kein Wenden erforderlich
- 60 kW Stromanschluss
- Raumdeckende Netzwerkverkabelung mit Serverschrank inkl. Patchfeld
- Dreigeschossiges begehbares Handlager + weitere Lagerregale
- Nutzung für Lager und Montage
- 12 PKW-Stellplätze für Mitarbeitende
- Meisterbüro mit ca. 17 m²
- Personalraum mit Küche und WC
- Verfügbar ab sofort
- Baujahr 1990
- Kaution i. H. v. 2 Nettokaltmieten
- Courtage vom Mieter i. H. v. 1,5 Nettokaltmieten zzgl. Mwst.
Sonstiges
Die Riverside Real Estate GmbH bietet Immobilien aller Assetklassen zum Verkauf und zur Miete an, mit Standorten in Bremen, Hameln-Pyrmont, Hannover und Umgebung.
Wenn Sie mehr über uns erfahren möchten, besuchen Sie gerne unsere Homepage unter http://WWW.RIVERSIDE-ESTATE.DE. Dort finden Sie ausführliche Informationen über unser Unternehmen, unsere aktuellen Angebote und weitere Dienstleistungen. Zusätzlich bieten wir Ihnen eine unabhängige und kostenfreie Preiseinschätzung Ihrer Immobilie an.
Wir freuen uns darauf, Ihnen weiterzuhelfen und Ihnen bei Ihren Immobilienanliegen zur Seite zu stehen.
Die Angaben zum Objekt erfolgen im Namen unseres Auftraggebers und dienen lediglich zu Informationszwecken. Für die Richtigkeit und Vollständigkeit wird keine Haftung übernommen.
Lage
Die Immobilie befindet sich im Gewerbegebiet Oyten – einem etablierten und gut strukturierten Gewerbeareal im Landkreis Verden, direkt an der Stadtgrenze zu Bremen. Dieses Gewerbegebiet hat sich in den letzten Jahren zu einem beliebten Standort für Unternehmen aus den Bereichen Logistik, Handel, Lager und Handwerk entwickelt.
Ein wesentlicher Standortvorteil ist die hervorragende Verkehrsanbindung: Die Auffahrt zur Autobahn A1 (Anschlussstelle Oyten) liegt nur wenige Minuten entfernt und ermöglicht eine schnelle Erreichbarkeit von Bremen (ca. 15 Minuten), Hamburg oder Hannover. Auch die A27 ist in kurzer Zeit erreichbar und bietet zusätzliche logistische Flexibilität in Richtung Cuxhaven und Walsrode.
Das Gewerbegebiet ist infrastrukturell sehr gut erschlossen. Zahlreiche namhafte Unternehmen haben sich hier bereits angesiedelt – dies schafft Synergien und eine gewachsene, wirtschaftsfreundliche Umgebung. Auch die Versorgung mit Dienstleistungen, Gastronomie und Einkaufsmöglichkeiten ist durch nahegelegene Einrichtungen im Ort Oyten gewährleistet.
Für Mitarbeitende ist der Standort durch die gute PKW-Anbindung sowie durch den Anschluss an den öffentlichen Nahverkehr (Buslinien in Richtung Bremen und Achim) attraktiv. Die Kombination aus logistischer Effizienz, Infrastruktur und wirtschaftlicher Dynamik macht das Gewerbegebiet Oyten zu einem zukunftssicheren Unternehmensstandort.
Autobahn 2,50 km
Wenn Sie die Immobilien-Karte anzeigen, übertragen Sie Daten an Google Maps (Datenschutzerklärung).
Die dargestellte Position der Immobilie ist nur eine ungefähre Angabe.


















